chevron_left
navigate_next

R$ 65.000,00

Prédio para alugar, Centro - Santo André/SP

800,00 m² Área Principal
800 m² Área Lote
0 Quartos
10 Banheiro
0 Vagas
0 Suite

Descrição do imóvel

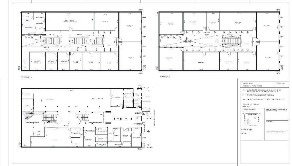
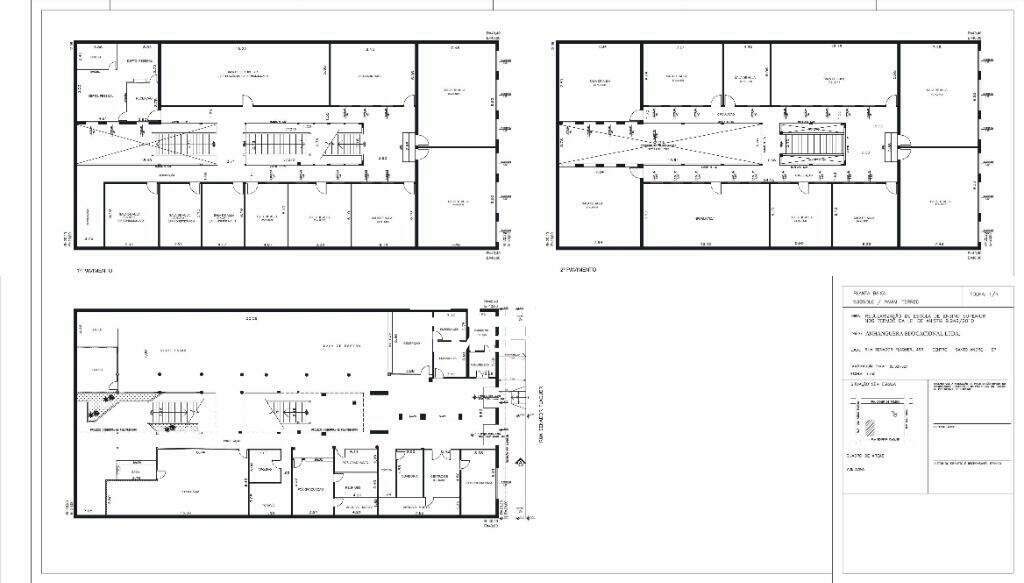
Prédio Comercial para Locação | 2.290 m² de construção | Centro, Santo André/SP

Maravilhoso prédio comercial com 800 m² de terreno e 2.290 m² de área construída, distribuídos em pavimento térreo e dois pavimentos superiores.

O imóvel conta com 20 salas, com capacidade para atender de 30 a 60 alunos por sala, totalizando até 1.000 alunos, ideal para escolas, call centers, bancos, clínicas especializadas, entre outros segmentos.

Possui departamentos amplos, como área de secretaria e setor de pessoal, além de cabine primária (subestação de energia), garantindo excelente infraestrutura elétrica.

Localizado em uma região com grande fluxo comercial e fácil acesso às principais vias, o imóvel é perfeito para quem busca espaço, visibilidade e estrutura completa para seu negócio.

A Imobiliária Elite é referência nos principais bairros de Santo André, oferecendo atendimento personalizado para ajudá-lo a encontrar o imóvel ideal.
Temos uma ampla variedade de imóveis residenciais e comerciais, para venda e locação, em toda a região de Santo André. Nossa sede está localizada na Rua Almirante Protógenes, 330 (esquina com a Av. Padre Manuel da Nóbrega), no Bairro Jardim – Santo André.
Agende sua visita e descubra excelentes oportunidades para realizar seus objetivos!
Venha nos conhecer e conte com nossos profissionais para esta aquisição!

imóvel

Cód. imóvel: 2669

Valor

R$ 65.000,00

Condomínio

R$ 0,00

IPTU

R$ 9.325,91

Total

R$ 74.325,91

Ao informar meus dados, eu concordo com a Política de Privacidade.

Compartilhar nas redes sociais

Encontrar imóvel ideal?

Não se preocupe. Deixe seu email e telefone que um especialista irá te ajudar.

Ao informar meus dados, eu concordo com a Política de Privacidade.

Calendário
WhatsApp