chevron_left
navigate_next

R$ 2.050.000,00

Apartamento à venda, Campestre - Santo André/SP

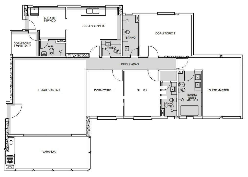
182,00 m² Área Principal
182 m² Área Lote
4 Quartos
5 Banheiro
4 Vagas
2 Suite

Descrição do imóvel

Apartamento com 4 dormitórios à venda, 182 m² Campestre Santo AndréApartamento dos Sonhos no Coração de Santo André!Apartamento de 4 dormitórios | 182 m² de puro conforto | R$ 2.050.000Descubra o lar perfeito para você e sua família em um dos bairros mais desejados de Santo André! Localizado no Campestre , este belíssimo apartamento foi projetado para quem busca conforto, espaço e qualidade de vida.4 dormitórios espaçosos, ideal para quem precisa de um quarto extra ou um home office confortável.Ampla área útil de 182 m² para você aproveitar cada espaço com privacidade e conforto.Sala de estar e jantar integrados, com acabamento de alto padrão e iluminação natural.Cozinha moderna e funcional, perfeita para quem ama cozinhar e receber amigos.Varanda ampla, proporcionando um espaço relaxante para momentos ao ar livre.3 vagas de garagem, garantindo segurança e praticidade para a família.Localização Privilegiada : O Campestre é um dos bairros mais nobres de Santo André, com infraestrutura completa: escolas, padarias, supermercados e opções de lazer ao redor. Acesso fácil às principais vias da cidade e transporte público.Este é o imóvel ideal para quem não abre mão de qualidade de vida e bem-estar. Venha conhecer e se encantar com cada detalhe! Entre em contato agora para agendar sua visita e dar o primeiro passo rumo ao seu novo lar!Entre contato conosco para agendar sua visita.A Imobiliária Elite é referência nos principais bairros de Santo André, oferecendo atendimento personalizado para ajudá-lo a encontrar o imóvel ideal. Contamos com uma ampla variedade de imóveis residenciais e comerciais, tanto para venda quanto para locação, em toda a região do ABC. Nossa sede está estrategicamente localizada na Rua das Aroeiras, 520, no Bairro Jardim, em Santo André. Agende sua visita e descubra excelentes oportunidades!

imóvel

Cód. imóvel: 4865

Valor

R$ 2.050.000,00

Condomínio

R$ 1.700,00

IPTU

R$ 2.700,00

Ao informar meus dados, eu concordo com a Política de Privacidade.

Compartilhar nas redes sociais

Encontrar imóvel ideal?

Não se preocupe. Deixe seu email e telefone que um especialista irá te ajudar.

Ao informar meus dados, eu concordo com a Política de Privacidade.

Calendário
WhatsApp